Dokumentacija
V podjetju Raster vam izdelamo celotno dokumentacijo, ki jo potrebujete za gradnjo nizkoenergijske montažne hiše, pasivne montažne hiše ali poslovnega objekta.
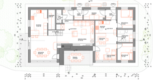
Idejna zasnova IDZ
Naš arhitekt vam izdela idejno zasnovo vaše stanovanjske hiše ali poslovnega objekta. Razporeditev prostorov se oblikuje skladno z vašimi potrebami in življenjskim stilom. Oblikujemo skladen zunanji izgled hiše in okolice.
3D predstavitev (vizualizacija)
zunanjosti in notranjosti objekta
Na osnovi prostorskega modela stanovanjske hiše ali poslovnega objekta se izdelajo realistični pogledi zunanjosti in notranjosti. S skladno in premišljeno izbranimi materiali in opremo prostor zaživi. S pomočjo vizualizacije je odločanje o ustreznosti razporeditve prostorov in opreme enostavno.
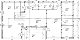
Projekt za pridobitev gradbenega
dovoljenja PGD
Vsebuje vso potrebno dokumentacijo za pridobitev gradbenega dovoljenja kjer koli v Sloveniji. Dokumentacija je prilagojena nizkoenergijski ali pasivni montažni gradnji.
Projekt za izvedbo PZI
Dokumentacija vsebuje vse potrebne dokumente za pričetek gradnje montažne hiše ali poslovnega objekta. Načrti in detajli so prilagojeni nizkoenergijski ali pasivni montažni gradnji.
Delavniški načrt
Tovarniška proizvodnja stenskih, stropnih in strešnih elementov zahteva ustrezno pripravljeno dokumentacijo. Načrti vsebujejo popis konstrukcijskega lesa. Risbe so pripravljene in kotirane glede na način izdelave elementov. Vrisani in kotirani so preboji, elementi električnih in strojnih instalacij in potrebni detajli.
Izdelamo strojne datoteke .bvn
Računalniško vodeni stroji (CNC) za obdelavo konstrukcijskega lesa potrebujejo ustrezne datoteke. Datoteka vsebuje podatke o dimenzijah in količini obdelovancev, parametrično so določene pozicije in lastnosti mehanske obdelave (utori, zareze, odrezi...) idr.






